Rs : 2 Cr to 3.8 Cr
Overview of Purva Atmosphere in Thanisandra, Bangalore

Apartments

Thanisandra, Bangalore

939 Units

Rs.2 Cr to 3.8 Cr

Rs.15600 Per Sq.Ft

2, 3, 4 BHK

13 Acres

Ready to move

20/10/2025

1280 to 2420 Sq.Ft

2

34

PR190204/002350
Description of Purva Atmosphere
About Purva Atmosphere
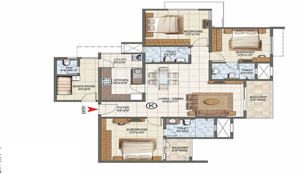
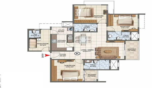
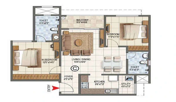
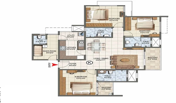
Purva Atmosphere floor plan provides details and scale drawings of apartment units ranging from 1280 sq. ft to 2420 sq. ft. The project has 1,2,3 BHK apartments of varied sizes in different price ranges. The project's floor plan is a diagram giving complete information about the rooms in a house when viewed from above. It provides dimensions between walls for every room, including the kitchen, living room, balcony, and bedroom.
Purva Atmosphere Floor Plans and Price
Locations Advantages of Purva Atmosphere
- Thanisandra Railway Station - 1KM
- KSRTC Main Bus Station - 3 minKM
- Cognizant Technology - 1.5 kmKM
- KIADB IT Park - 5 minKM
Gallery of Purva Atmosphere
Purva Atmosphere Amenities
-
Car Parking
-
Kids Park
-
Air Condition
-
Gym
-
Elavator
-
Security Guard
-
Generator
-
Kids Play Area
-
Security
-
CCTV Camera
-
Liesure Area
-
Volley Ball
-
Tennis Court
-
Pet Free
-
Sun Bed
-
Jogging Track
-
Shot Put
-
Basket Ball Court
-
Lift
-
Kids Swimming Pool
-
Door Smart Look
-
Running Track
-
Cycling Track
-
Yoga
-
Walking Track
-
Swimming Pool
-
Indoor Games
-
Outdoor Games
-
Multipurpose Hall
-
Family Corner
-
Meditation zone
-
Poolside jacuzzi
-
Amphitheatre
Purva Atmosphere Location Map
Specification of Purva Atmosphere
Doors
- Internal: Laminated Flush Door
- Main: Wooden Frame and Moulding Door
Flooring
Vitrified Tiles
- Toilets
- Balcony
- Kitchen
- Living/Dining
- Master Bedroom
- Other Bedroom
Ceramic Tiles
- Balcony
- Kitchen
Fittings
- Exhaust Fan for Toilets
- Exhaust Fan for Kitchen
Others
- Points: Living
- UPVC / Aluminium Windows
- Copper Wiring in PVC Concealed Conduit
- RCC framed structure
- Modular switches
EMI Calculator
- Property Cost
Rs. 38 L
- Loan Amount
Rs. 38 L
- Monthly EMI
Rs. 60,190
- Total Interest Payable
Rs. 9,55,989
- Total Amount Payable
Principal + Interest
Rs. 50,55,989