Highlights of Brigade Cornerstone Utopia Varthur, Bangalore !
Overview of Brigade Cornerstone Utopia in Varthur, Bangalore
Apartments
Varthur, Bangalore
4000 Units
Rs.32 L - 98 L

Rs.6000 Per Sq.Ft
Studio,1,2,3 BHK
47 Acres
Ready to move
01/12/2024

533 - 1897 Sq.Ft
12
26
PRM/KA/RERA/1251/446/PR/181122/002176
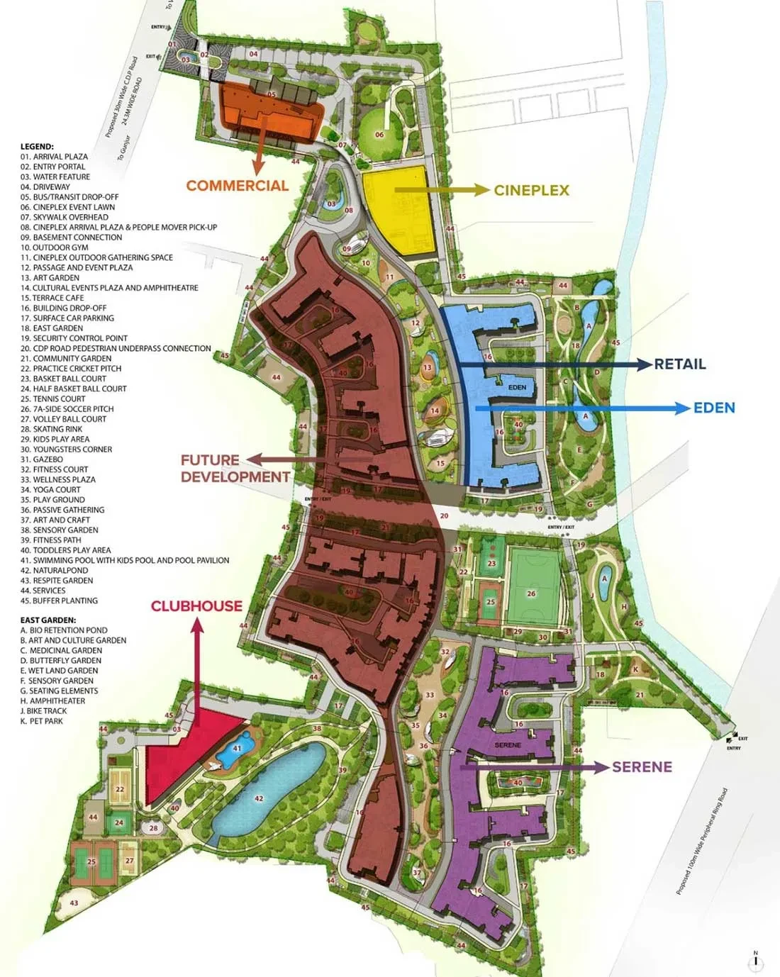
- Key Features: Brigade Cornerstone Utopia in Varthur spans of 47 acres and comprises 4000 well-planned Units within a structures community layout.
- Possession Status: Ready to move – perfectly suited for self-occupation or smart property investment.
- Regulatory Clearances: RERA approved*; buyers should conduct due diligence for legal clarity and secure investment.
Gallery of Brigade Cornerstone Utopia
About Brigade Cornerstone Utopia
The residential apartment features the best in the Group’s luxury segment. The project offers big spacious Apartments with comfortable features. The beautiful landscapes all around make it more unique. The builder guarantees to bring an excellent living experience.
The project is with brilliant architecture. The location has an excellent network. It is near upcoming communities. It is near the heart of Varthur Road – Balagere Road. Some popular transit point is the metro station. The Railway Station is near the project. Out of this, the Transit Label is nearest to this location.
The project has a decent framework to offer. It has three academic institutes in the locality. Around five medical care centers are available close to this location.
The area has an upcoming Metro Station. The area has an improving Road Framework. Provisions are there for a water heater and water purifier. The brochure has a detailed list of the society’s offerings. It also details facilities, features, payment plans, and much more.
About
Brigade Utopia has apartments and studio apartments for sale. Society will have all the essential amenities. It will suit homebuyers’ needs. The project spreads over a significant area of 47 acres. There are 4000 units on offer.
The housing society has many property choices in varied price ranges. It makes it one of the most suitable places to own in your budget. Brigade Cornerstone Utopia has 12 towers with twenty-six floors. There are five phases in this project. The area has a Popular IT Hub. There is high rental demand due to the framework.
Price
The latest addition offers Studio, 1,2 BHK apartments from Rs. 32 Lakhs. 1BHK Apartment with 799 sq. Ft. Starts from Rs. 43.94 Lakhs. 2BHK apartment with 857 sq. Ft. starts from Rs. 54.32 Lakhs. 3BHK apartment with 1,389 sq. Ft. starts from Rs. 91.99 L.
Amenities
The project lets its residents experience the best feel. It lists all details from top facilities to extensive landscapes. Amenities include an equipped clubhouse. It has gardens, a gym, and recreation rooms. It includes a swimming pool, sports courts, a play area, and a party hall. All amenities are well planned with the most significant importance.
Brigade Cornerstone Utopia Price and Floor Plan
Locations Advantages of Brigade Cornerstone Utopia
- The Eye Foundation | Eye Hospital in Whitefield - 0.3KM
- Little Innovators Preschool - 4.2KM
- TCIS Whitefield CBSE School - 1KM
- Chrysalis High School, Varthur - 0.6KM
- Kotak Mahindra Bank - 0.4KM
- FlowerWings - Flower & Cake Shop in Varthur, Bangalore - 0.5KM
Brigade Cornerstone Utopia Amenities
-
Kids Park
-
Gym
-
Elevator
-
Security Guard
-
Generator
-
Kids Play Area
-
Security
-
CCTV Camera
-
Liesure Area
-
Battery Backup
-
Tennis Court
-
Badminton Court
-
Battery
-
Fire Alarm
-
Jogging Track
-
Basket Ball Court
-
Lift
-
Kids Swimming Pool
-
Running Track
-
Cycling Track
-
Yoga
-
Walking Track
-
Swimming Pool
-
Indoor Games
-
Multipurpose Hall
-
Meditation zone
Specification of Brigade Cornerstone Utopia
Structure
- RCC framed structure Building
- Concrete Solid Block Masonry (Int & Ext) – 200MM Exterior walls, 100MM Interior walls
Flooring
- Vitrified Flooring in Living, Dining (Premium)
- Anti Skid Ceramic Tile flooring (premium)
Doors
- Main door with a teak wood door frame.
- All Bedrooms internal doors with Sal wood frame
- Main door single hardwood shutter door
- plumbing-specifications-homznspace
Plumbing and Sanitary
- Queo / Bravit / Kohler / Equivalent
- Rainwater Harvesting drain pipes included.
Security
- Otis / Equivalent elevators in each tower
- Round the clock security with intercom facility
- CCTV Camera at all vantage points.
Electrical
- Grid Power from BESCOM for each home
- Modular switches
- Copper electrical wiring all throughout via concealed conduits
- 100% Power backup for elevators, common areas & pumps
Brigade Cornerstone Utopia Location Map
EMI Calculator
- Property Cost
Rs. 98.7 L
- Loan Amount
Rs. 98.7 L
- Monthly EMI
Rs. 60,190
- Total Interest Payable
Rs. 9,55,989
- Total Amount Payable
Principal + Interest
Rs. 50,55,989
Frequently Asked Questions of Brigade Cornerstone Utopia in Varthur, Bangalore
Brigade Cornerstone Utopia
Ready to moveBy Brigade Group
BHK Type
Studio,1,2,3
Rate Per Sqft
Rs. 6000
Property Type
Apartments
Location
Varthur
Rs. 32 L - 98 L
About Brigade Group
Explore exclusive new launch projects of Brigade Group’s find Apartments, Villas or Plots property for sale at Bangalore. Grab the Early-bird launch offers, flexible payment plan, high-end amenities at prime locations in Bangalore.
Since 1986, Brigade has been committed to sculpting India's real estate landscape with iconic developments that transcend diverse categories, solidifying our stature as a leading name in the industry.
Backed by an extensive portfolio spanning residential, commercial, hospitality and retail sectors, we have crafted a distinguished legacy that embodies unyielding excellence and unmatched quality. We believe that the cornerstone of our leadership within the industry lies in not just meeting but surpassing customer expectations. Our user-focused approach serves as the bedrock, ensuring that every one of Brigade's developments delivers the epitome of class and style to our customers.
Every land acquisition presents a new opportunity for Brigade, approached with prudence, unlocking new territories while upholding environmental and societal duties. Championing the spirit of constant innovation, the Brigade Real Estate Accelerator Program (REAP) emerges as a driving force for sustainability and innovation in real estate. The Brigade Foundation underscores our dedication to empowering lives and enriching the social fabric that surrounds us through educational, healthcare and community-building endeavours.