Highlights of Total Down by the water Yelahanka, Bangalore !
Overview of Total Down by the water in Yelahanka, Bangalore
Apartments
Yelahanka, Bangalore
602 Units
Rs.4.62 Cr to 12.02 Cr

Rs.18400 Per Sq.Ft
3,4 BHK
17.5 Acres
Under Construction
05/01/2026

2490 to 6480 Sq.Ft
16
PRM/KA/RERA/1251/472/PR/090824/006967
- Key Features: Total Down by the water in Yelahanka spans of 17.5 acres and comprises 602 well-planned Units within a structures community layout.
- Possession Status: Under Construction – perfectly suited for self-occupation or smart property investment.
- Regulatory Clearances: RERA approved*; buyers should conduct due diligence for legal clarity and secure investment.
Gallery of Total Down by the water
About Total Down by the water
Total Environment Down by The Water is an exclusive residential community located in Yelahanka, Bangalore. Designed to blend seamlessly with nature, this luxury project offers meticulously crafted villas with earthy aesthetics, open spaces, and lush greenery. Each home is customized to reflect the homeowner’s personality, featuring high-quality materials, signature brickwork, and large glass panels for ample natural light. The project is strategically positioned to provide a serene lakeside living experience while ensuring easy connectivity to major IT hubs, educational institutions, and healthcare centers.
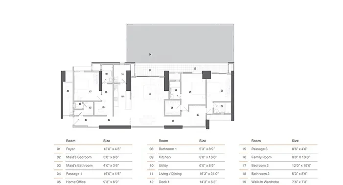
Total Down by the water Price and Floor Plan
Locations Advantages of Total Down by the water
- Yelahanka Railway Station - 5.5 kmKM
- Nagawara Metro Station - 3.5 kmKM
- Kempegowda International Airport - 6.7 kmKM
- Elements Mall Thanisandra - 3.5 kmKM
Total Down by the water Amenities
-
Car Parking
-
Kids Park
-
Air Condition
-
Gym
-
Elevator
-
Security Guard
-
Generator
-
Security
-
CCTV Camera
-
Liesure Area
-
Jogging Track
-
Lift
-
Kids Swimming Pool
-
Door Smart Lock
-
Running Track
-
Cycling Track
-
Yoga
-
Walking Track
-
Swimming Pool
-
Outdoor Games
-
Multipurpose Hall
-
Family Corner
-
Meditation zone
-
24x7 Water Supply
-
Gated Community
-
Street Road
-
Landscape Garden
-
Street Lighting
-
Tree Planting
Specification of Total Down by the water
ELECTRICAL
Backup power shall be provided for the common area
lighting, pumps and motors. Generators shall be provided
with acoustic enclosures and an automatic change-over
switch.
OTHERS
Every home is designed with a terrace garden.
WATER MANAGEMENT SYSTEMS
Tertiary Sewage Treatment Plant (STP) shall be provided
for the use of recycled water in landscaping and flushing
system. Percolation pits shall be provided for rainwater
harvesting.
VERTICAL TRANSPORTATION
Elevators shall be provided with multi-beam sensors for
automatic door operation and down collective system. SS
finish shall be provided inside the elevator cabin.
SECURITY SYSTEMS
24/7 CCTV Surveillance in all common areas.
Total Down by the water Location Map
EMI Calculator
- Property Cost
Rs. 924 L
- Loan Amount
Rs. 924 L
- Monthly EMI
Rs. 60,190
- Total Interest Payable
Rs. 9,55,989
- Total Amount Payable
Principal + Interest
Rs. 50,55,989
Frequently Asked Questions of Total Down by the water in Yelahanka, Bangalore
Total Down by the water
Under ConstructionBy Town and City Developer
BHK Type
3,4
Rate Per Sqft
Rs. 18400
Property Type
Apartments
Location
Yelahanka
Rs. 4.62 Cr to 12.02 Cr
About Town and City Developer
Explore exclusive new launch projects of Town and City Developer’s find Apartments, Villas or Plots property for sale at Bangalore. Grab the Early-bird launch offers, flexible payment plan, high-end amenities at prime locations in Bangalore.
About TNCD (Town & City Developers)
TNCD, part of the esteemed KG Groups with a legacy of trust since 1932, aims to bring affordable and premium, high-quality homes to Coimbatore. Led by Kiruthika Vikram and Sanjana Vijayakumar, the company is committed to improving the lifestyle of countless families by offering smart homes in prime locations. With a focus on comfort, quality, and innovation, we use advanced technology to build homes that stand the test of time. Our mission is to make homeownership a reality for everyone, continuing the proud tradition of excellence set by the KG Groups.
TNCD (Town & City Developers) is the novel venture of the KG Groups, one of the premier industrial groups in South india, well known for its tradition of trust since 1932. The group forayed into a multitude of Verticals launching companies, products & services for the past nine decades with global Excellence.
MissionOur mission is to help young people become homeowners with smart incentives and affordable options. We ensure economical homes without compromising on quality or technology.
VisionTo transform Coimbatore with a blend of affordable and premium homes while creating exceptional office spaces and commercial developments that redefine the city’s skyline.