Highlights of The Garnet Kalapatti, Coimbatore !
Overview of The Garnet in Kalapatti, Coimbatore
Villas
Kalapatti, Coimbatore
24 Units
Rs.3.2 Cr - 3.29 Cr

Rs.8400 Per Sq.Ft
3 BHK
2.3 Acres
Under construction
03/05/2027

3917–4030 Sq.Ft
TN/11/Building/0201/2025
- Key Features: The Garnet in Kalapatti spans of 2.3 acres and comprises 24 well-planned Units within a structures community layout.
- Possession Status: Under construction – perfectly suited for self-occupation or smart property investment.
- Regulatory Clearances: RERA approved*; buyers should conduct due diligence for legal clarity and secure investment.
Gallery of The Garnet
About The Garnet
In Coimbatore, "The Garnet" typically refers to either a premium villa development in Kalapatti or a boutique jewellery store in Selvapuram.
The Garnet by Samridhi (Residential Villas)
This is a luxury gated community project developed by Samridhi Uniquespaces, located in the rapidly developing area of Kalapatti.
Location: Near SVB Tech Park, SNS Kalvi Nagar, Kalapatti, Coimbatore - 641107.
Project Details:
Configuration: Offers premium 3 BHK and 4 BHK villas.
Unit Size: Built-up areas range from approximately 3,610 to 4,303 sq. ft..
Pricing: Estimated prices range from ₹2.94 Cr to ₹3.51 Cr.
Status: Currently under construction, with expected possession around May 2027 to October 2030.
Amenities: Features include a swimming pool, gymnasium, clubhouse, children's play area, and 24/7 power backup.
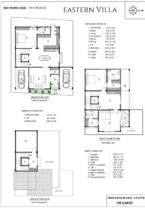
The Garnet Price and Floor Plan
Locations Advantages of The Garnet
- Coimbatore International Airport - 1KM
- SNS College of Technology - 2.3KM
- The Indian Public School - 3.8KM
- National Highway 948 - 4.3KM
- Vimal Jyothi Hospital - 5.6KM
- Prozone Mall - 8.6KM
- Le Méridien Coimbatore - 9.4KM
- Peelamedu Train Station - 11.8KM
- Nehru Stadium - 15.1KM
The Garnet Amenities
-
Car Parking
-
Kids Park
-
Gym
-
Security Guard
-
Generator
-
Kids Play Area
-
Security
-
CCTV Camera
-
Liesure Area
-
Battery Backup
-
Jogging Track
-
Cycling Track
-
Yoga
-
Swimming Pool
-
Indoor Games
-
Multipurpose Hall
-
Meditation zone
-
Gated Community
-
Street Road
-
Landscape Garden
Specification of The Garnet
STRUCTURE
Ground + 2 storey
RCC framed structure
Steel – Fe500 grade
Concrete block, internally cement plastered & externally finished with waterproofing cement plaster
Brick cladding on elevation as per design
Clear unfinished ceiling height – 11 feet
Anti-termite treatment in the plinth area
PPC grade cement
FLOORING
Living, lounge, dining, bedroom (except master bedroom), and kitchen – 1600mm x 840mm double glazed vitrified tiles
Master bedroom & deck – Engineered wooden flooring with skirting
Balcony, utility, and covered terrace – Anti-skid ceramic tiles
Open terrace – Weather-resistant clay tiles (terrace floor only)
Staircase – Granite flooring with SS handrail
PLUMBING
All CPVC/PVC/UPVC lines from Finolex / Astral
All other plumbing lines will be UPVC
PVC pipeline for underground drainage
Solar water heater on the terrace
SS pipeline for drinking water
BATHROOM
Walls – Dado tiles up to 8 feet height (1200mm x 600mm DGVT tiles)
Floor – 1200mm x 600mm antiskid floor tiles
American Standard / TOTO wall-mounted WC with concealed tank and CP fittings
Hot water provision for shower and bath spout
False ceiling at 8 feet height
Provision of exhaust fan in all bathrooms
All bathrooms connected to solar water heater lines
JOINERIES
Main door – Steel frame with designer moulded shutter and biometric lock; antique finish brass hardware
Bedroom doors – Steel frame with plain moulded door shutters, Godrej locks, matte finish SS hardware
Bathroom doors – Steel frame with door shutter
Utility doors – Steel frame with waterproof wooden flush door
Balcony doors – Aluminum with toughened glass
Windows – Aluminum with see-through plain glass & MS safety grill
MS grills not provided for fixed elevation windows
Ventilators – UPVC with frosted glass, louvered panels & exhaust provision
WALL & CEILING FINISHES
Interior walls – 1 coat of primer & 2 coats of premium emulsion paint (Nippon or equivalent)
Exterior walls – 1 coat of primer & 2 coats of weather-proof exterior emulsion
Grills/railings – Primer & 2 coats of enamel paint
ELECTRICAL
Underground electrical cables
Power supply – 3-phase EB connections
Cables/wires – Polycab or equivalent brand
Modular switches & sockets – Legrand / Polycab
MCB, ELCB & DB with safe trip – Siemens
Split AC provision in living and all bedrooms
Note: No copper wiring used
Intercom point – Provided in living and master bedroom only
DTH/TV points – Provided in living & master bedroom
EV car charging point at car parking
The Garnet Location Map
EMI Calculator
- Property Cost
Rs. 329 L
- Loan Amount
Rs. 329 L
- Monthly EMI
Rs. 60,190
- Total Interest Payable
Rs. 9,55,989
- Total Amount Payable
Principal + Interest
Rs. 50,55,989
Frequently Asked Questions of The Garnet in Kalapatti, Coimbatore
The Garnet
Under constructionBy Samridhi Unique Spaces
BHK Type
3
Rate Per Sqft
Rs. 8400
Property Type
Villas
Location
Kalapatti
Rs. 3.2 Cr - 3.29 Cr
About Samridhi Unique Spaces
Explore exclusive new launch projects of Samridhi Unique Spaces’s find Apartments, Villas or Plots property for sale at Coimbatore. Grab the Early-bird launch offers, flexible payment plan, high-end amenities at prime locations in Coimbatore.
Blending Timeless Values with Modern Innovations at Samridhi
At Samridhi, we pride ourselves on staying in sync with emerging trends and the innovative minds driving them. Our dedication to these visionaries shapes all our work, inspiring us to push boundaries and redefine possibilities.
We hold steadfast to timeless values such as honesty, diligence, and discipline. To us, these are not relics of the past but essential foundations upon which modern principles of technology, aesthetics, and design are built. Our commitment to these values ensures that every idea we conceive and every home we construct is not only cutting-edge but also rooted in integrity and excellence.