Highlights of My Home Akrida Gopanpally, Hyderabad !
Overview of My Home Akrida in Gopanpally, Hyderabad
Apartments
Gopanpally, Hyderabad
3780 Units
Rs.1.04 Cr - 1.76 Cr*

Rs.7500 Per Sq.Ft
2, 2.5, 3 BHK
24.99 Acres
Under Construction
01/12/2028

1399 - 2347 Sq.Ft
12
31
P01100007443
- Key Features: My Home Akrida in Gopanpally spans of 24.99 acres and comprises 3780 well-planned Units within a structures community layout.
- Possession Status: Under Construction – perfectly suited for self-occupation or smart property investment.
- Regulatory Clearances: RERA approved*; buyers should conduct due diligence for legal clarity and secure investment.
Gallery of My Home Akrida
About My Home Akrida
The word Akrida means Centre of Joy. This project is designed around the sole purpose of creating joy and peace in the hearts of the people who reside here. Utmost attention has been paid to designing a space that you would instantly fall in love with.
We know how essential it is to stay connected to our true elements to be able to live a fulfilling life. At My Home Akrida, the Clubhouse is more than just a building – it's a gateway to a life well-lived. Here, you'll discover a world of possibilities, where leisure, wellness, and social connection intertwine to create an unparalleled living experience. Come,immerse yourself, and unlock the door to a future filled with endless joy, fulfillment, and memories to cherish for a lifetime.
Situated in the prime location of Gopanpally, My Home Akrida offers excellent connectivity to major landmarks and essential services. Whether it's schools, railway stations, ORR, or the airport, everything is just a few minutes away, making your daily commute a breeze.
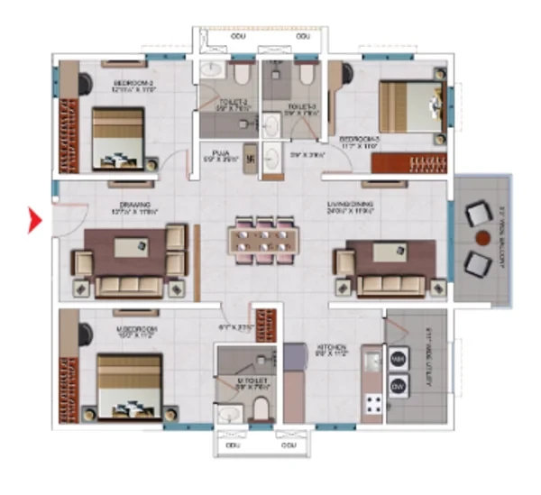
My Home Akrida Price and Floor Plan
| Type | Size | Price | Floor Plan |
|---|---|---|---|
| 2 BHK | 1399 Sqft | Rs : 1.04 Cr |
|
| 2 BHK | 1622 Sqft | Rs : 1.21 Cr |
|
| 3 BHK | 1926 Sqft | Rs : 1.44 Cr |
|
| 3 BHK | 2012 Sqft | Rs : 1.51 Cr |
|
| 3 BHK | 2262 Sqft | Rs : 1.7 Cr |
|
| 3 BHK | 2347 Sqft | Rs : 1.76 Cr |
|
Locations Advantages of My Home Akrida
- Manthan International School - 1.3KM
- Aksha Hospital - 2.6KM
- University of Hyderabad - 3.9KM
- De-Royal Aparna Neo mall - 5.7KM
- Lingampalli - 6.8KM
My Home Akrida Amenities
-
Car Parking
-
Gym
-
Kids Play Area
-
Security
-
CCTV Camera
-
Liesure Area
-
Battery Backup
-
Tennis Court
-
Badminton Court
-
Cricket
-
Fire Alarm
-
Jogging Track
-
Basket Ball Court
-
Lift
-
Running Track
-
Cycling Track
-
Yoga
-
Walking Track
-
Swimming Pool
-
Indoor Games
-
Multipurpose Hall
-
Family Corner
-
Meditation zone
-
Squash
-
Amphitheatre
Specification of My Home Akrida
SUPER STRUCTURE RCC shear wall-framed structure, resistant to wind and earthquake (Zone -2) WALLS Internal wall: Reinforced shear walls. External Wall: Reinforced shear walls. CEILING FINISHES DRAWING, DINING, LIVING, BEDROOMS, KITCHEN AND BALCONY: Smoothly finished with putty and acrylic emulsion paint of reputed brands. BATHROOMS: Grid ceiling to cover all service lines. WALL FINISHING DRAWING, DINING, LIVING, BEDROOMS, KITCHEN AND BALCONY: Smoothly finished with putty and acrylic emulsion paint of reputed brands. Bathrooms: Reputed make of GVT / ceramic tiles cladding up to false ceiling EXTERNAL FINISHING: Texture finish & two coats of exterior emulsion paint of reputed brands with architectural features FLOORING DRAWING, DINING, LIVING, BEDROOMS AND KITCHEN:800 x 800 mm size double charged Vitrified tiles of reputed brand with spacer joint. BALCONY / BATHROOMS/ UTILITY: Anti-skid vitrified / ceramic tiles of reputed make Corridor & Lift Lobbies Flooring: Vitrified tiles with spacer joint Staircase: Natural stone / granite WINDOWS/GRILLS Flat windows are of aluminum alloy / UPVC glazed sliding/open-able shutters with EPDM gaskets, necessary hardware with M.S. grill and provision for mosquito mesh shutter DOORS Main Door: Hard wood frame, finished with melamine spray polish both side. Veneered finished flush shutters with reputed hardware Internal Doors: Hard wood frame or factory made wooden frame with both sides laminated flush shutters with reputed hardware BATHROOMS/UTILITY DOORS: Granite frame with both sides laminated flush shutters with reputed hardware. BALCONIES: Aluminum/UPVC glazed French sliding doors with mosquito mesh provision ALL BATHROOMS Vanity type wash basin with single lever basin mixer. EWC with flush valve of reputed brand. Single lever bath and shower mixer. Provision for geysers in all bathrooms. All faucets are chrome plated of reputed brands. KITCHEN Granite platform with single bowl stainless steel sink. Provision for water purifier. ELECTRICAL Concealed copper wiring of reputed make. Power outlet for air conditioners in all bed rooms and living. Power outlets for geysers in all bathrooms and utility. Power outlets for chimney, hob, refrigerator, microwave oven, mixer/grinder in kitchen. Washing machine and dishwasher point in utility area. Three phase supply for each unit and individual prepaid meters. Miniature circuit breakers (MCB) for each distribution board of reputed make. Modular switches of reputed make. TV / TELEPHONE Telephone point in drawing. Intercom facility to all units connecting security Provision for cable TV connection in drawing, living and all bedrooms. One internet connection provision in drawing, living and all bedrooms WATER PROOFING Waterproofing shall be provided for all bathrooms, balconies, utility area & roof terrace SECURITY Round the clock security/surveillance system Surveillance cameras at the main security and at the entrance of the tower & lift cabin. FIRE SAFETY Fire alarm, automatic sprinklers and wet risers as per fire authority regulations. POWER BACK UP 100% DG backup with acoustic enclosure and AMF. LPG / PNG Supply of LPG / PNG with piped gas system. LIFTS V3F drive high speed lifts of reputed make. Lift lobby cladding with vitrified tiles / granite. WTP & STP Water treatment plant for bore-well water and water meter for each Unit. A sewage treatment plant of adequate capacity as per norms will be provided inside the project. Treated sewage water will be used for the landscaping and flushing purpose. BILLING SYSTEM Automated prepaid billing system for water, power, gas and Maintenance.
My Home Akrida Location Map
EMI Calculator
- Property Cost
Rs. 176 L
- Loan Amount
Rs. 176 L
- Monthly EMI
Rs. 60,190
- Total Interest Payable
Rs. 9,55,989
- Total Amount Payable
Principal + Interest
Rs. 50,55,989
Frequently Asked Questions of My Home Akrida in Gopanpally, Hyderabad
My Home Akrida
Under ConstructionBy My Home Constructions Pvt. Ltd
BHK Type
2, 2.5, 3
Rate Per Sqft
Rs. 7500
Property Type
Apartments
Location
Gopanpally
Rs. 1.04 Cr - 1.76 Cr*
About My Home Constructions Pvt. Ltd
Explore exclusive new launch projects of My Home Constructions Pvt. Ltd’s find Apartments, Villas or Plots property for sale at Hyderabad. Grab the Early-bird launch offers, flexible payment plan, high-end amenities at prime locations in Hyderabad.
My Home, the home to the best homes in Hyderabad!
The lineage that My Home is synonymous with & below are the facts that drive home the point :
Ultra luxury Apartments in Hitech City 25 completed Residential and Commercial projects
Ultra luxury Apartments in Madhapur Over 35+ years of rich legacy
Luxury Flats for Sale in Hitech City 37 million sq. ft. of total built-up area delivered
Luxury Gated Communities In Hitech City Over 40.21 Million sft is under construction
3 BHK apartments at Financial District Over 50 Million sft is in planning stage
Luxury 3 BHK apartment at Q City Road Proven history of significant appreciation for every property
But more than the numbers, we take pride in the way we stitch multiple facets of owning a home. We make it a good experience by stringing our six principles: Happy Communities, Superior Living, Clear Documentation, Timely Delivery, Desirable Destinations and Secure Environment.
No wonder, My Home ranks as the preferred choice of intelligent homebuyers.
OUR VISION
Our vision is to continue to develop solutions that make “living better” be it through Construction of “World Class” Living and Working Spaces or illuminating households through generation of power or manufacturing products like quality cement to build dream homes or enriching lives through imparting quality education.