Rs : 38.99 L - 1.55 Cr*
Overview of Lakshmi Lake View

Plots

Ayappakkam, Chennai

283 Units

Rs.38.99 L - 1.55 Cr*

Rs.6498 Per Sq.Ft

10.88 Acres

Ready to Move

01/10/2024

600 - 2400 sq.ft. Sq.Ft

TN/2/Layout/3850/2024
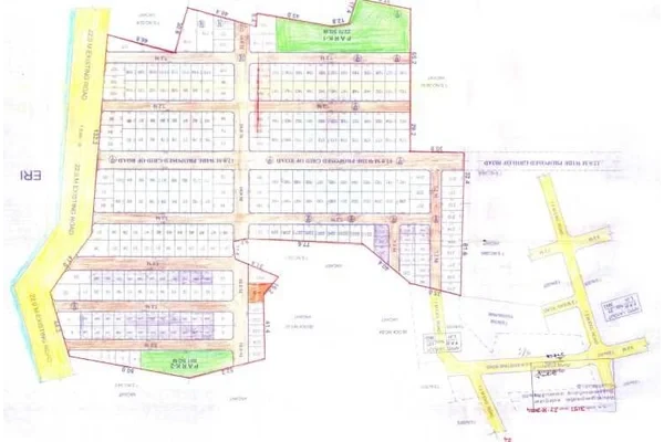
Description of Lakshmi Lake View
About Lakshmi Lake View
Lakshmi Lake View, offers 10.88 acres of premium plots in a prime, well-connected location with easy access to schools, colleges, hospitals, and IT parks. Committed to fostering customer trust and loyalty, this project provides an ideal canvas for building your dream home amidst green spaces and natural elements. With CMDA and RERA approvals, Lakshmi Lake View ensures a secure and eco-friendly environment, making it a perfect choice for those seeking quality and convenience in a premium setting.
Lakshmi Lake View Floor Plans and Price
Locations Advantages of Lakshmi Lake View
- Velammal Vidyalaya - 1.6KM
- Mahalakshmi Women’s College of Arts and Science - 2.2KM
- Avadi Railway Station - 4.1KM
- Annanur Railway Station - 2.5KM
- Ambattur Industrial Estate - 5.3KM
Gallery of Lakshmi Lake View
Lakshmi Lake View Amenities
-
Kids Park
-
Security
-
CCTV Camera
-
Badminton Court
-
Jogging Track
Lakshmi Lake View Location Map
EMI Calculator
- Property Cost
155 L
- Loan Amount
155 L
- Monthly EMI
60,190
- Total Interest Payable
9,55,989
- Total Amount Payable
Principal + Interest
50,55,989