Highlights of Eeshanyas Synchrony Saravanampatti, Coimbatore !
Overview of Eeshanyas Synchrony in Saravanampatti, Coimbatore
Apartments
Saravanampatti, Coimbatore
90 Units
Rs.57.25 L - 78.25 L

Rs.5000 Per Sq.Ft
2, 2.5, 3 BHK
1.08 Acres
New Launch
01/08/2027

1145 - 1565 Sq.Ft
1
5
TN/11/Building/0133/2025
- Key Features: Eeshanyas Synchrony in Saravanampatti spans of 1.08 acres and comprises 90 well-planned Units within a structures community layout.
- Possession Status: New Launch – perfectly suited for self-occupation or smart property investment.
- Regulatory Clearances: RERA approved*; buyers should conduct due diligence for legal clarity and secure investment.
Gallery of Eeshanyas Synchrony
About Eeshanyas Synchrony
Eeshanyas Synchrony is an under-construction residential apartment project by Eeshanya Constructions, located in the Saravanampatti area of Coimbatore, Tamil Nadu.
Project Overview
Location: Situated in Mulai Nagar, Vellakinar Village, near Manchester School, Saravanampatti.
Total Units: 90 standalone units across 3 or 5 towers.
Total Land Area: Approximately 1.08 acres.
Construction Status: Under construction, with expected possession by August 2027.
RERA Status: Approved under registration number TN/11/Building/0133/2025.
Key Amenities
The project is designed with 35% open space and includes:
Utilities: Piped gas connection, individual RO systems for each flat, and 24/7 power backup.
Security: CCTV surveillance, 24x7 security personnel, and an automatic boom barrier at the entrance.
Leisure: Gymnasium, clubhouse, children's play area, and landscaped gardens.
Structure: Earthquake-resistant RCC framed structure with solar lighting in common areas.
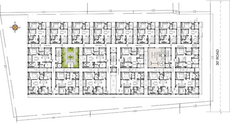
Eeshanyas Synchrony Price and Floor Plan
Locations Advantages of Eeshanyas Synchrony
- Little Flower Matriculation School - 0.2KM
- Malar Hospital - 2.4KM
- National Highway 181 - 3.4KM
- KGiSL Institute of Technology - 5.9KM
- PROZONE MALL - 8.1KM
- Coimbatore North Station - 8.5KM
- Nehru Stadium - 11.4KM
- Coimbatore International Airport - 15.9KM
Eeshanyas Synchrony Amenities
-
Car Parking
-
Kids Park
-
Gym
-
Elevator
-
Security Guard
-
Kids Play Area
-
Security
-
CCTV Camera
-
Liesure Area
-
Battery Backup
-
Battery
-
Fire Alarm
-
Lift
-
24x7 Water Supply
-
Gated Community
-
Landscape Garden
-
Street Lighting
Specification of Eeshanyas Synchrony
STRUCTURE
RCC framed structure with earthquake resistance.
FLOORING
Living Area: Branded vitrified tiles.
Lift Lobbies & Common Area: Tile/granite flooring.
Car Parking: VDF Stamp Flooring.
Kitchen: Vitrified tiles (7 ft height).
Balcony & Utility: Anti-Skid Ceramic/ Vitrified tiles.
Toilets: Branded anti-skid tiles for flooring and wall dado up to roof height.
Terrace: Weather proofing treatment.
BATHROOMS
Branded CP & Sanitary fittings with Towel rod.
Sanitary & CP Fittings: Jaguar or Equivalent.
Geyser & exhaust provision with required points.
False ceiling in toilets.
KITCHEN
Polished granite slab with full-nosed edges.
SS sink with Plumbing points & RO Water inlet.
Provision for chimney, exhaust, water filter, and common electrical points.
DOORS AND WINDOWS
Entrance Door: Designer wood panel with ready-made paneled door & lock.
Bedrooms: Readymade flush doors.
Bathrooms: Waterproof doors.
Windows and ventilators: UPVC with glass shutters & metal grills.
FINISHES
Interior (Living, Dining, Bedrooms, Kitchen): 2 coats of putty, 1 coat of primer, 2 coats premium emulsion.
Exterior: As per Architect's design.
ELECTRICAL
Wiring: Copper wires from leading brands (e.g., Finolex).
Switches: Crompton/ GM or Equivalent.
Kitchen: Provision for chimney, exhaust, water filter, and common electrical points.
Bedrooms: Common electrical points with split AC provision.
Utility: Points for washing machine, dishwasher, and dryer.
Bathrooms: Geyser & exhaust provision with required points.
UPS provision setup will be provided.
OTHERS
Individual branded 8-10L RO filter per flat (Drinking Water).
Utility: SS Sink with Washing Machine and Dish Washer provision.
MS handrails in Lift Lobbies & Common Area.
Lifts with power backup.
Eeshanyas Synchrony Location Map
EMI Calculator
- Property Cost
Rs. 78.25 L
- Loan Amount
Rs. 78.25 L
- Monthly EMI
Rs. 60,190
- Total Interest Payable
Rs. 9,55,989
- Total Amount Payable
Principal + Interest
Rs. 50,55,989
Frequently Asked Questions of Eeshanyas Synchrony in Saravanampatti, Coimbatore
Eeshanyas Synchrony
New LaunchBy Eeshanya Constructions
BHK Type
2, 2.5, 3
Rate Per Sqft
Rs. 5000
Property Type
Apartments
Location
Saravanampatti
Rs. 57.25 L - 78.25 L
About Eeshanya Constructions
Explore exclusive new launch projects of Eeshanya Constructions’s find Apartments, Villas or Plots property for sale at Coimbatore. Grab the Early-bird launch offers, flexible payment plan, high-end amenities at prime locations in Coimbatore.
Eeshanya Group is a leading South Indian property developer in Coimbatore and Hyderabad, specializing in real estate construction and property development. With an aggressive growth mindset, we have created amazing communities and earned the trust of our clients. Since 2012, we have been committed to delivering high-quality projects that exceed expectations. Our expertise includes building villas, residential towers, commercial complexes, and more. We are recognized for our quality and prompt project implementation, devotion to standards, and excellent services. Through effective construction solutions, we strive to build global standards of engineering excellence and foster long-term client relationships.